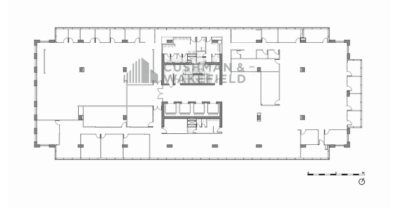
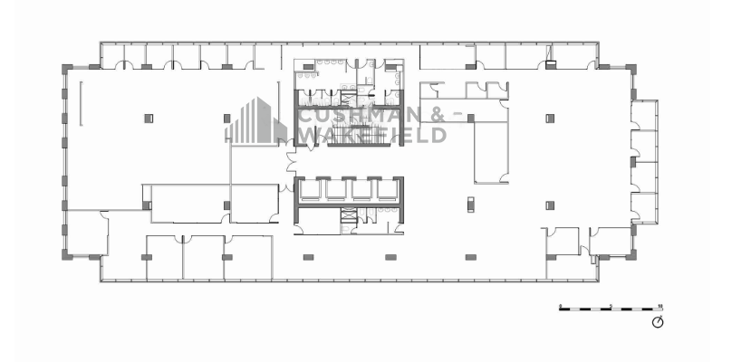
Oficina ubicada en Alcántara 200, comuna de Las Condes, en un sector consolidado de carácter corporativo y residencial de alto estándar. Emplazada en el eje de Alcántara, a pocos minutos caminando de la estación Metro Alcántara (L1) y con excelente conectividad hacia Av. Apoquindo, Av. Américo Vespucio Sur y Av. Presidente Riesco, lo que permite un acceso expedito desde distintos puntos de la ciudad. El entorno inmediato combina edificios de oficinas, consulados, servicios profesionales, hoteles, comercio de barrio y variada oferta gastronómica, generando un ambiente óptimo para operaciones corporativas que requieren conectividad, representatividad y servicios de apoyo en su entorno directo. El edificio cuenta con las siguientes caracteristicas: